Меню
Закрыть
8 800 101 76 00
Продажа и ипотека
Дом сдан
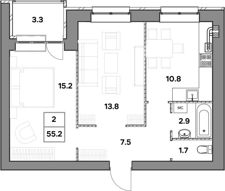
2-комн. 55.2 м2

2-комн. 55.2 м2

7 727 000
В ипотеку: от 37 090/мес
139 982 ₽/м2
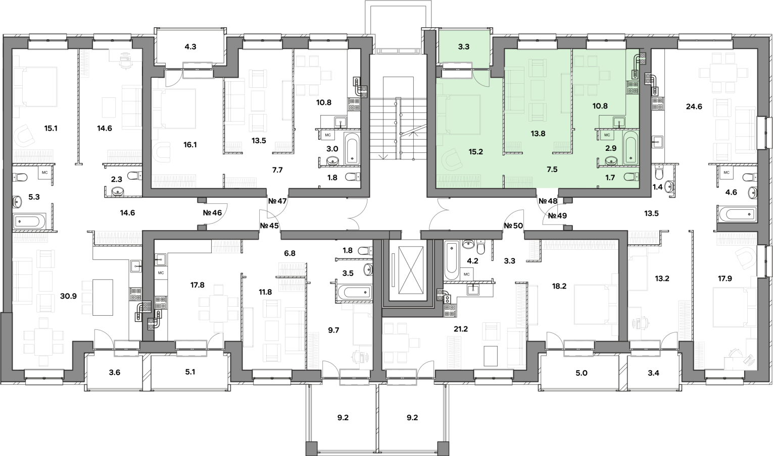
Этаж
3 из 4
№ дома
124A
№ квартиры
48
Окна
на 1 сторону
Отделка
Предчистовая
  • 01.
    Отопление
    Газовый котел BAXI

    Котлы итальянского бренда BAXI характеризуются надёжностью и удобством управления, они экономичные и производительные

  • 02.
    Акустический комфорт
    Превосходная шумоизоляция
    Толстые внешние стены в 640 мм — согласно действующих строительных норм
  • 03.
    Современные материалы
    Высокая энерго-эффективность дома
    Это не только комфортное проживание, но и существенная экономия на платежах за отопление
  • 04.
    Надёжное энергоснабжение
    Энергоёмкая проводка
    Провода в квартире имеют медную жилу 1,5 мм2, что позволяет использовать энергоёмкое бытовое электрооборудование, а индивидуальные электрощитки установлены внутри каждой квартиры
  • 05.
    Дополнительное пространство
    Просторные балконы и лоджии
    Теплые и уютные пространства с многокамерным остеклением между улицей и квартирой. Большинство остеклений панорамные, на первых этажах доступен вариант «Зимний сад»
  • 06.
    Отделочные работы
    Предчистовая отделка
    Самая трудоёмкая часть ремонта уже сделана. Мы развели электрическую проводку и установили розетки и выключатели, оштукатурили стены, залили стяжку, развели отопление и установили радиаторы.
  • 07.
    безопасность и тишина
    Входная дверь
    Двери российского производства толщиной 90 мм с уплотнением и надёжными замками. Вам не придётся её менять и вы не будете слышать соседей.
Похожие квартиры
8 059 000
В ипотеку: от 38 683/мес
141 138 ₽/м2
Дом № 124A
Дом сдан
Этаж 4
Квартира №53
Потолок 3 метра
Предчистовая
7 957 000
В ипотеку: от 38 194/мес
139 108 ₽/м2
Дом № 124A
Дом сдан
Этаж 3
Квартира №47
Предчистовая
8 318 000
В ипотеку: от 39 926/мес
139 097 ₽/м2
Дом № 124A
Дом сдан
Этаж 3
Квартира №18
Окна на 2 стороны
Предчистовая
8 469 000
В ипотеку: от 40 651/мес
136 158 ₽/м2
Дом № 124A
Дом сдан
Этаж 3
Квартира №17
Кухня-гостиная
Зимний сад
8 268 000
В ипотеку: от 39 686/мес
138 492 ₽/м2
Дом № 124A
Дом сдан
Этаж 2
Квартира №10
Окна на 2 стороны
Предчистовая
  • #
  • #
  • #
  • #
  • #
  • #
  • #
  • #
  • #
  • #
Меню
Закрыть
Записаться на просмотр
Заявка принята

Спасибо за обращение. В самое ближайшее время менеджер свяжется с вами. Будьте на связи!

Сентябрь 2022

Продолжая использовать этот сайт, Вы даете согласие на обработку персональных данных в соответствии с Пользовательским соглашением и Политикой в отношении обработки персональных данных

хорошо