Меню
Закрыть
8 800 101 76 00
Продажа и ипотека
Дом сдан
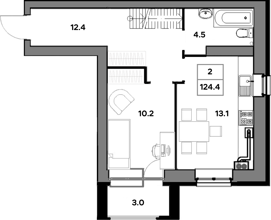
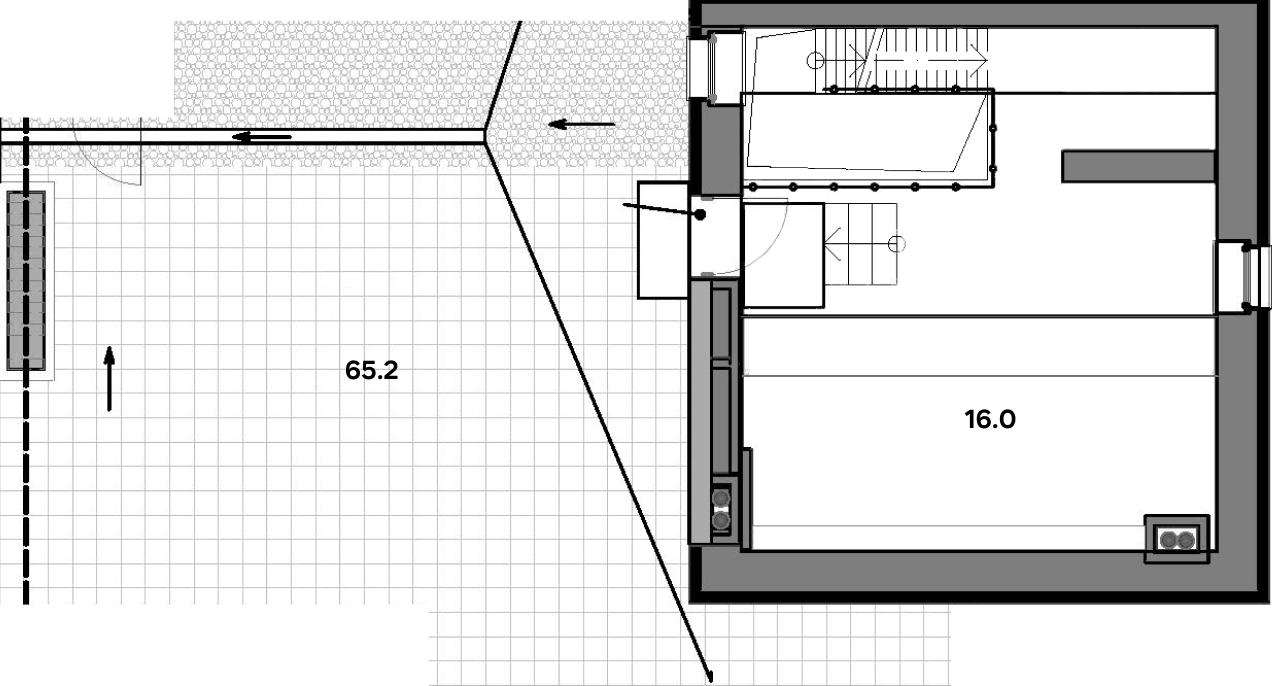
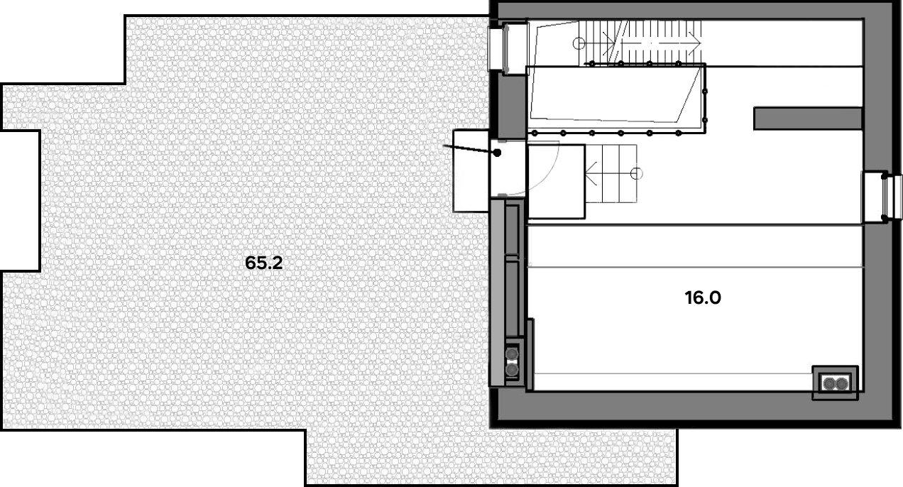
2-комн. 124.4 м2 двухуровневая

2-комн. 124.4 м2

12 586 000
В ипотеку: от 60 413/мес
101 174 ₽/м2
Этаж
4 из 4
№ дома
130
№ квартиры
20
Тип квартиры
2-уровневая
Потолок
3 метра
Окна
на 1 сторону
Отделка
Предчистовая
Терраса
да
  • 01.
    Отопление
    Газовый котёл Navien

    Установлены двухконтурные котлы южнокорейской фирмы «Navien» - мирового лидера производства котельного оборудования. Бренд имеет разветвлённую сервисную сеть в России, что гарантирует безотказную работу до 15 лет

  • 02.
    Акустический комфорт
    Превосходная шумоизоляция
    Толстые внешние стены в 640 мм — согласно действующих строительных норм
  • 03.
    Современные материалы
    Высокая энерго-эффективность дома
    Это не только комфортное проживание, но и существенная экономия на платежах за отопление
  • 04.
    Надёжное энергоснабжение
    Энергоёмкая проводка
    Провода в квартире имеют медную жилу 1,5 мм2, что позволяет использовать энергоёмкое бытовое электрооборудование, а индивидуальные электрощитки установлены внутри каждой квартиры
  • 05.
    Дополнительное пространство
    Просторные балконы и лоджии
    Теплые и уютные пространства с многокамерным остеклением между улицей и квартирой. Большинство остеклений панорамные, на первых этажах доступен вариант «Зимний сад»
  • 06.
    Отделочные работы
    Предчистовая отделка
    Самая трудоёмкая часть ремонта уже сделана. Мы развели электрическую проводку и установили розетки и выключатели, оштукатурили стены, залили стяжку, развели отопление и установили радиаторы.
  • 07.
    безопасность и тишина
    Входная дверь
    Двери российского производства толщиной 90 мм с уплотнением и надёжными замками. Вам не придётся её менять и вы не будете слышать соседей.
Похожие квартиры
11 357 000
В ипотеку: от 54 514/мес
130 585 ₽/м2
Дом № 124
3 кв. 2026 г.
Этаж 3
Квартира №17
Окна на 2 стороны
Кухня-гостиная
12 976 500
В ипотеку: от 62 287/мес
100 671 ₽/м2
Дом № 130
Дом сдан
Этаж 4
Квартира №23
2-уровневая
Терраса
  • #
  • #
  • #
  • #
  • #
  • #
  • #
  • #
  • #
  • #
Меню
Закрыть
Записаться на просмотр
Заявка принята

Спасибо за обращение. В самое ближайшее время менеджер свяжется с вами. Будьте на связи!

Сентябрь 2022

Продолжая использовать этот сайт, Вы даете согласие на обработку персональных данных в соответствии с Пользовательским соглашением и Политикой в отношении обработки персональных данных

хорошо